Серийный шкаф управления ИТП и котельными
Компания: ОКБ АМУР №3
Город: Химки, мкр Сходня
Используемая продукция ОВЕН:
Большинство ИТП и небольших котельных имеют типовую структуру и одинаковый набор задач: погодозависимое регулирование отопления, поддержание температуры ГВС, управление насосами и возможность удаленного контроля.
Несмотря на повторяемость проектов, автоматика для таких объектов зачастую разрабатывается каждый раз заново, что приводит к избыточным затратам на проектирование и увеличению сроков внедрения.
Для сокращения сроков проектирования и внедрения систем автоматизации для ИТП и котельных наш партнер ОКБ АМУР №3, специализирующийся на разработке ПО для автоматизации и диспетчеризации, а также на изготовлении шкафов автоматики по индивидуальным характеристиках, разработал серийный шкаф управления (ШУ) на базе контроллера для отопления и ГВС ОВЕН ТРМ32.
Задача проекта
Необходимо было создать унифицированное решение с функциями погодозависимого регулирования в контуре отопления и регулирования в контуре горячего водоснабжения.
Реализация проекта
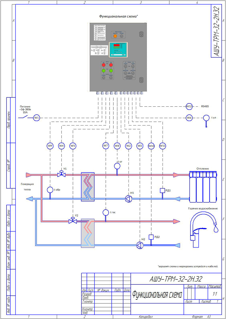
Для решения задачи был разработан шкаф управления на базе регулятора ОВЕН ТРМ32 в щитовом исполнении с интерфейсом связи RS-485, в котором предусмотрены стандартные схемы подключения и защиты оборудования и реализованы все алгоритмы управления отоплением и ГВС.
Контроллер ТРМ32 предназначен для применения в индивидуальных и центральных тепловых пунктах и котельных и оптимально подходит для данного проекта. Встроенный алгоритм ПИД-регулирования обеспечивает высокую точность поддержания температуры в высокодинамичных системах ГВС и отопления. Наличие интерфейса RS-485 предполагает возможность диспетчеризации.
Для индикации режимов работы и аварий на передней панели шкафа использована светосигнальная арматура MEYERTEC. Бесперебойное питание обеспечивает блок питания ОВЕН БП30Б.
С помощью автоматики ШУ можно реализовать следующие режимы работы:
- автоматический и ручной;
- дневной и ночной.
Для реализации всех необходимых функций к шкафу управления достаточно подключить датчики и оборудование:
- датчик температуры среды ОВЕН ДТС145 – 3 шт.;
- датчик температуры наружного воздуха ОВЕН ДТС3125 для погодозависимого регулирования температуры в контуре отопления и поддержания заданной температуры в контуре ГВС независимо от водоразбора – 1 шт.;
- реле давления (для защиты насосов от сухого хода) – 2 шт.;
- клапан регулирующий системы отопления;
- клапан регулирующий системы ГВС;
- циркуляционный насос системы отопления;
- циркуляционный насос системы ГВС.
Такая комплектация шкафа обеспечивает выполнение базовых задач автоматизации ИТП.
Результат разработки
Серийные шкафы управления позволяют стандартизировать повторяющиеся задачи. В них уже реализованы типовые алгоритмы управления, учтены основные сценарии эксплуатации и защиты, унифицирован состав оборудования и схема подключения. Такой подход сокращает сроки проектирования и пусконаладки и упрощает эксплуатацию.
Мнение партнера
Алексей Муравицкий, главный инженер ОКБ «Амур №3»
Мы подготовили серийное решение типовых задач автоматизации ИТП и небольших котельных с унифицированным наполнением. Такой подход особенно эффективен на объектах, где важны скорость внедрения, повторяемость решения и надежность базового функционала.
Используемая продукция ОВЕН
Дополнительные материалы
| Функциональная схема в ПДФ | 1.34 MB |
Информация о компании
Компания: ОКБ АМУР №3
Контактное лицо: ОКБ АМУР №3
Телефон: +79031425022
E-mail: a_muravitsky@okbamur3.ru
Сайт: ИП Муравицкий



